Descrizione
Pera Luigi
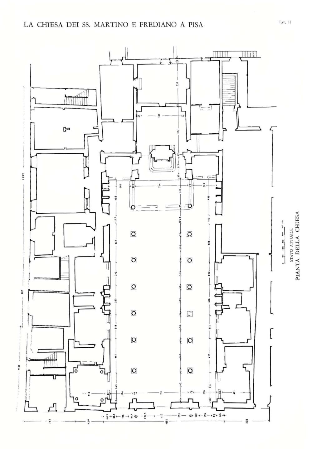
L’architettura minore del periodo romanico in Pisa.
Le chiese di San Frediano e di San Michele degli Scalzi
A cura della Facoltà di Ingegneria di Pisa (Istituto di Architettura e Urbanistica)
Ed. Istituto Poligrafico e Zecca dello Stato. Libreria dello stato. Roma
Anno 1954
mis. 35 x 50 cm.
24 tavole di cui si riportano le prime due nella Galleria dei prodotti per fini illustrativi del prodotto
cartella in cartone rigido foderata



